Вытяжка с активированным углем - из нержавеющей стали - идеально подходит для устранения неприятных запахов
Вытяжка с активированным углем оснащена фильтрами с активированным углем, которые могут очень эффективно очищать воздух. На самом деле активированный уголь обладает особой способностью: удерживать грязь и примеси. Таким образом, воздух снова попадает в продезинфицированную и обновленную среду.
Вытяжка с активированным углем в самовсасывающих настенных моделях и моделях Mini Snack представляет собой вытяжки из соответствующих серий, к которым добавлена дополнительная фильтрующая перегородка, состоящая из фильтра из синтетического материала класса G2 и фильтра, содержащего активированный растительный уголь типа «CARBOFIL AGC». " в версии AG, в дополнение к фильтру из нержавеющей стали с микропористой сеткой.
Установленные таким образом самовытяжные
колпаки дают хорошие результаты по уменьшению дыма и запахов (около 70%) там, где по разным причинам невозможно удалить дым, производимый варочными панелями, традиционным способом. Поглотительная способность веществ в газообразном состоянии активированным растительным углем определяется температурой, относительной влажностью воздуха и скоростью прохождения последнего.
Для оптимизации данного оборудования желательно, чтобы условия эксплуатации не превышали температуры 50-60°С при относительной влажности 70-75%. Эффективность активированного угля измеряется системой бензольного индекса 21 г/100 г, индекс CCL > 35%.
Тем не менее, всегда будет хорошей практикой направлять вытяжку, чтобы предотвратить попадание неочищенной части воздуха в рабочую среду .
Особенности конструкции капота с активированным углем:
- Особый профиль делает его идеальным для кухонных блоков глубиной 60-70-90 см, расположенных у стены.
- Конструкция из стали AISI 430 с матовым покрытием Scotch-Brite. Полностью римбордата, даже во внутренних частях.
- Собран электросваркой.
- Канал сбора конденсата по периметру. Конденсатор клеммной колодки в коробке IP 55.
- Специальные исполнения (исполнение из AISI 304, сварка) по запросу.
В комплекте с вытяжкой из активированного угля:
- Тройная фильтрующая перегородка, состоящая из металлического сетчатого фильтра + акрилового фильтра + фильтра с активированным углем
- Электровентилятор центробежный 220В однофазный 50/60Гц
- Слив конденсата 1/2”
- Крепежные стержни
- Сертификаты, относящиеся к активированному углю
Примечания по вытяжке с активированным углем:
- Стандартная упаковка включена в стоимость .
- Комплект для подвешивания и фланец в комплект не входят .
- Вытяжки средней длины без маркировки имеют ту же цену, что и вытяжки большей длины (например: CS711 = CS712).
- Также доступен в закусочной версии по запросу.
- Построен в соответствии со стандартами CE
- Сделано в Италии.
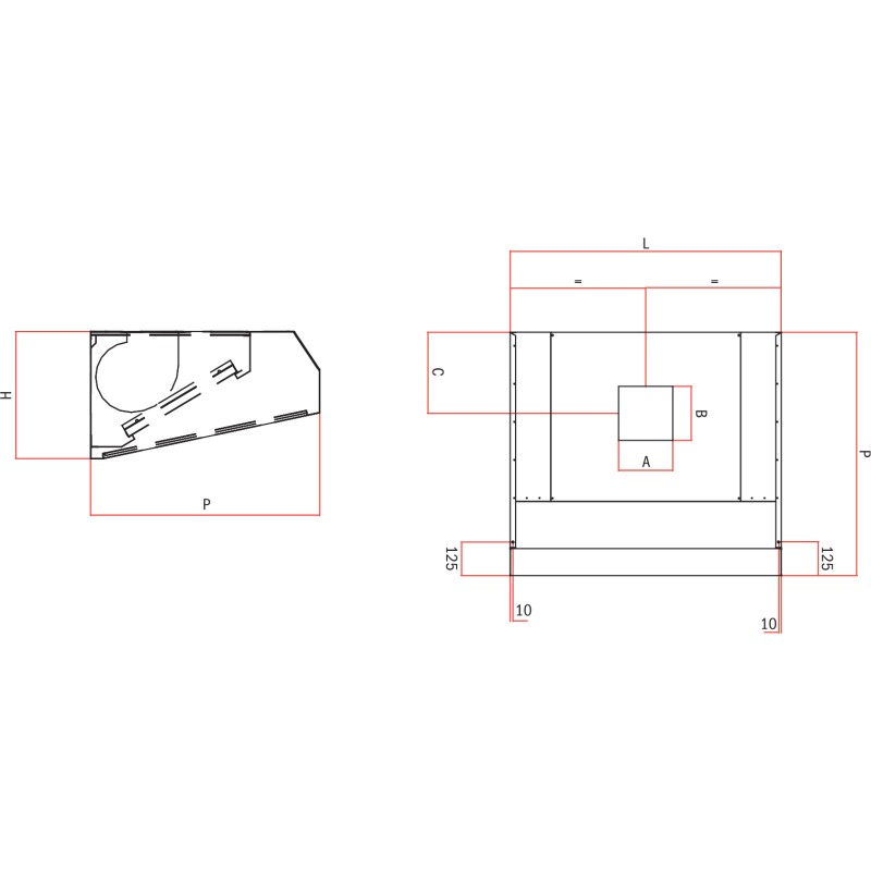
Технический паспорт - Самовсасывающий колпак с активированным углем из нержавеющей стали (с электровентилятором)
Вытяжка из активированного угля глубиной 700 мм
| Шаблон |
Размеры ШхДхВ |
А х В |
с |
Фильтрующий материал и количество фильтров |
Уголь |
Очищенный воздух |
Масса |
Емкость* |
Мотор |
Вт/Ампер |
| (мм) |
(мм) |
(мм) |
Сетка из нержавеющей стали |
Синтетический |
Уголь |
(кг) |
(м 3 /ч) |
(кг) |
(м 3 /ч) |
| СС 7/10 |
700 x 1000 x 600 |
230x200 |
245 |
2а |
2а |
2а |
3,8 |
600 |
34 |
900 |
7/7 |
145/1,8 |
| СС 7/12 |
700 x 1200 x 600 |
230x200 |
245 |
2б |
2б |
2б |
4,8 |
640 |
38 |
1100 |
7/7 |
145/1,8 |
| СС 7/14 |
700 x 1400 x 600 |
300x270 |
215 |
3а |
3а |
3а |
5.7 |
900 |
42 |
1250 |
8/9T |
420/3.1 |
| СС 7/16 |
700 x 1600 x 600 |
300x270 |
215 |
3а |
3а |
3а |
5.7 |
900 |
46 |
1400 |
8/9T |
420/3.1 |
| СС 7/18 |
700x1800x600 |
300x270 |
215 |
3б |
3б |
3б |
7.2 |
960 |
50 |
1600 |
8/9T |
420/3.1 |
| СС 7/20 |
700 x 2000 x 600 |
300x270 |
215 |
4а |
4а |
4а |
7.6 |
1200 |
54 |
1800 |
8/9T |
420/3.1 |
| СС 7/22 |
700x2200x600 |
300x270 |
215 |
4а |
4а |
4а |
7.6 |
1200 |
58 |
1950 г. |
8/9T |
420/3.1 |
| СС 7/24 |
700 x 2400 x 600 |
300x270 |
215 |
4б |
4б |
4б |
9,6 |
1280 |
62 |
2200 |
8/9T |
420/3.1 |
| СС 7/26 |
700 x 2600 x 600 |
300x270 |
215 |
4б |
4б |
4б |
9,6 |
1280 |
66 |
2300 |
8/9T |
420/3.1 |
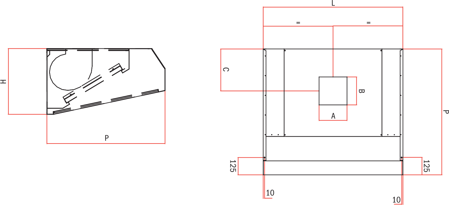
Вытяжка из активированного угля глубиной 900 мм
| Шаблон |
Размеры ШхДхВ |
А х Б |
с |
Фильтрующий материал и количество фильтров |
Уголь |
Очищенный воздух |
Масса |
Емкость* |
Мотор |
Вт/Ампер |
| (мм) |
(мм) |
(мм) |
Сетка из нержавеющей стали |
Синтетический |
Уголь |
(кг) |
(м 3 /ч) |
(кг) |
(м 3 /ч) |
| СС 9/10 |
900x1000x600 |
230x200 |
245 |
2с |
2с |
2с |
4,8 |
640 |
36 |
1000 |
7/7 |
145/1,8 |
| СС 9/12 |
900x1200x600 |
300x270 |
245 |
2д |
2д |
2д |
6 |
700 |
40 |
1150 |
8/9T |
420/3.1 |
| CC 9/14 |
900x1400x600 |
300x270 |
215 |
3с |
3с |
3с |
7.2 |
960 |
44 |
1400 |
8/9T |
420/3.1 |
| CC 9/16 |
900x1600x600 |
300x270 |
215 |
3с |
3с |
3с |
7.2 |
960 |
46 |
1550 |
8/9T |
420/3.1 |
| CC 9/18 |
900x1800x600 |
300x270 |
215 |
3д |
3д |
3д |
9 |
1050 |
50 |
1800 |
8/9T |
420/3.1 |
| СС 9/20 |
900x2000x600 |
300x270 |
215 |
4с |
4с |
4с |
9,6 |
1280 |
54 |
2000 г. |
8/9T |
420/3.1 |
| СС 9/22 |
900x2200x600 |
300x270 |
215 |
4с |
4с |
4с |
9,6 |
1280 |
58 |
2200 |
8/9T |
420/3.1 |
| СС 9/24 |
900x2400x600 |
300x270 |
215 |
4д |
4д |
4д |
12 |
1400 |
62 |
2400 |
8/9T |
420/3.1 |
| СС 9/26 |
900x2600x600 |
300x270 |
215 |
4д |
4д |
4д |
12 |
1400 |
66 |
2550 |
8/9T |
420/3.1 |

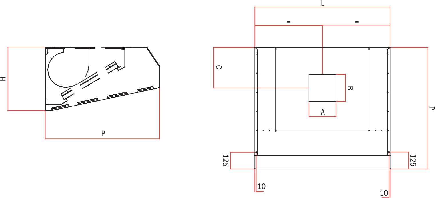
Вытяжка из активированного угля глубиной 1100 мм
| Шаблон |
Размеры ШхДхВ |
А х В |
с |
Фильтрующий материал и количество фильтров |
Уголь |
Очищенный воздух |
Масса |
Емкость* |
Мотор |
Вт/Ампер |
| (мм) |
(мм) |
(мм) |
Инокс Сеть |
Синтетический |
Уголь |
(кг) |
(м 3 /ч) |
(кг) |
(м 3 /ч) |
| СС 11/12 |
1100x1200x600 |
300x270 |
215 |
2д |
2д |
2д |
6 |
700 |
42 |
1450 |
8/9T |
420/3.1 |
| СС 11/14 |
1100x1400x600 |
300x270 |
215 |
3с |
3с |
3с |
7.2 |
960 |
46 |
1650 |
8/9T |
420/3.1 |
| СС 11/16 |
1100x1600x600 |
300x270 |
215 |
3с |
3с |
3с |
7.2 |
960 |
50 |
1900 г. |
8/9T |
420/3.1 |
| СС 11/18 |
1100x1800x600 |
300x270 |
215 |
3д |
3д |
3д |
9 |
1050 |
54 |
2100 |
8/9T |
420/3.1 |
| СС 11/20 |
1100x2000x600 |
300x270 |
215 |
4с |
4с |
4с |
9,6 |
1280 |
58 |
2400 |
8/9T |
420/3.1 |
| СС 11/22 |
1100x2200x600 |
300x270 |
215 |
4с |
4с |
4с |
9,6 |
1280 |
62 |
2600 |
8/9T |
420/3.1 |
| СС 11/24 |
1100x2400x600 |
300x270 |
215 |
4д |
4д |
4д |
12 |
1400 |
66 |
2850 |
8/9T |
420/3.1 |
Электровентиляторы, установленные на вытяжке, состоят из однофазных двигателей 230 В, 50 Гц.
Легенда фильтра:
- 400x400мм
- 500x400мм
- 400x500мм
- 500x500мм
* : Средняя скорость потока определена при скорости прохода под колпаком 0,30 м/с.