Мини-вытяжка из нержавеющей стали - Малые размеры - Для узких помещений, таких как бары и домашние кухни
Mini Snack Hood — это небольшая профессиональная самоаспирирующаяся вытяжка , идеально подходящая для домашней обстановки, где вы не хотите отказываться от производительности профессиональной кухни, или для тех кухонь, где из-за недостатка места установка громоздких вытяжных систем невозможна. .
Вы можете выбрать желаемую версию вытяжки Mini Snack из нержавеющей стали (выберите нужный вариант).
Вариант вытяжки Inox Mini Snack на ваш выбор:
- Без электровентилятора;
- Со встроенным электровентилятором;
- Электровентилятор + Регулятор скорости + Светодиодное освещение.
Например, модель
Mini Snack FullOption оснащена подсветкой и регулятором скорости и удовлетворяет все потребности в комфорте, типичные для домашней кухни. И все это без потери мощности всасывания, необходимой для надежной профессиональной кухни.
Вытяжка Mini Snack - Особенности конструкции
Особый профиль вытяжки Mini Snack делает ее идеальной для кухонных блоков глубиной 60 см, расположенных у стены, особенно в случае низких потолков и особенно небольших помещений.
- Конструкция AISI 430 , матовая отделка Scotch-Brite;
- Полностью обрезной , даже во внутренних частях;
- Собран электросваркой;
- Специальные исполнения (исполнение из AISI 304, сварка) по запросу.
Поставляется с вытяжкой Inox Mini Snack:
- Лабиринтные жироулавливающие фильтры из нержавеющей стали AISI 430;
- 1/2” слив конденсата.
Примечания к вытяжке Mini Snack:
- Модель FullOption оснащена электрическим вентилятором, регулятором скорости и светодиодной подсветкой;
- Упаковка включена;
- Комплект для подвешивания и фланец в комплект не входят.
Вытяжка Mini Snack из нержавеющей стали
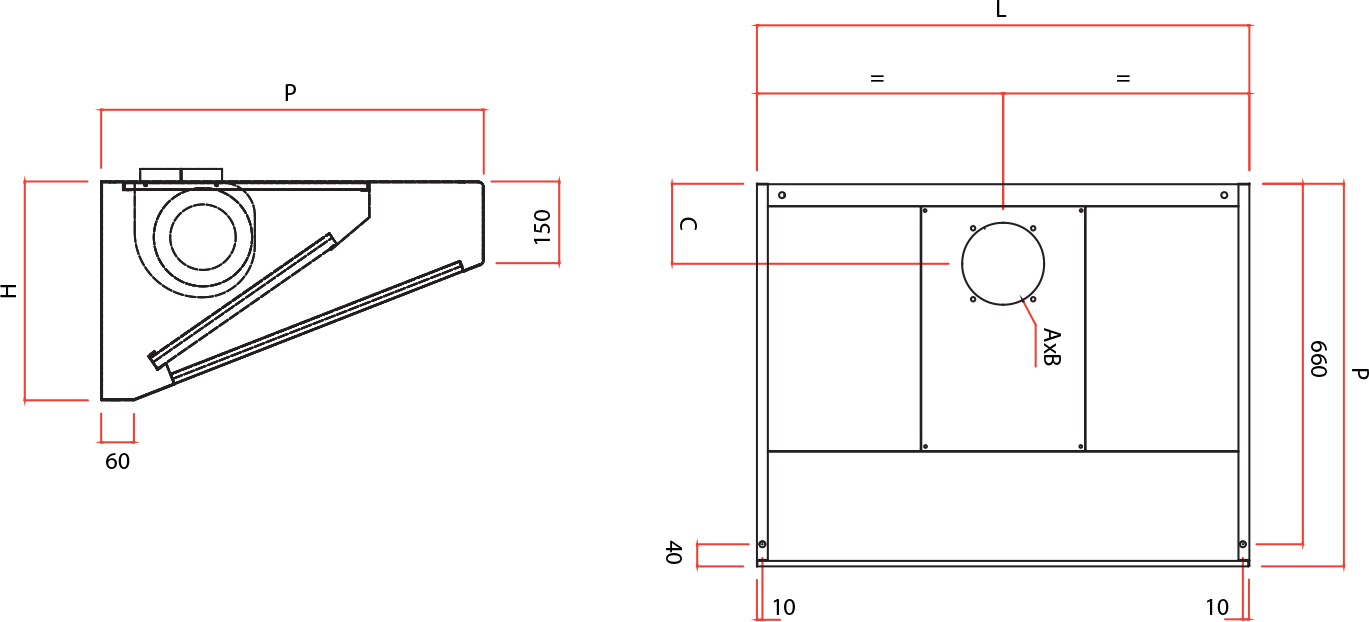
Размеры
(ДхШхВ мм) |
Модель |
АхВ
(мм) |
Количество фильтров
(300x400 мм) |
Масса
(кг) |
Объем
(м 3 /ч) |
с
(мм) |
Вт/Ампер |
Регулятор |
светодиодные прожекторы |
| 550 x 600 x 400 |
Без электрического вентилятора |
150x150 |
2е |
20 |
360 |
150 |
|
Нет |
|
| 550 x 600 x 400 |
С электрическим вентилятором |
210x100 |
2е |
28 |
360 |
90 |
380/1,7 |
Нет |
|
| |
|
|
|
|
|
|
|
|
|
| 700 x 900 x 400 |
Без электрического вентилятора |
150x150 |
2е |
24 |
|
150 |
|
Нет |
|
| 700 x 900 x 400 |
С электрическим вентилятором |
210x100 |
2е |
31 |
800 |
90 |
380/1,7 |
Нет |
|
| 700 x 900 x 400 |
Полный необязательный |
Ø150 |
2е |
35 |
800 |
150 |
300/1,38 |
Да |
2 х 4 Вт |
