
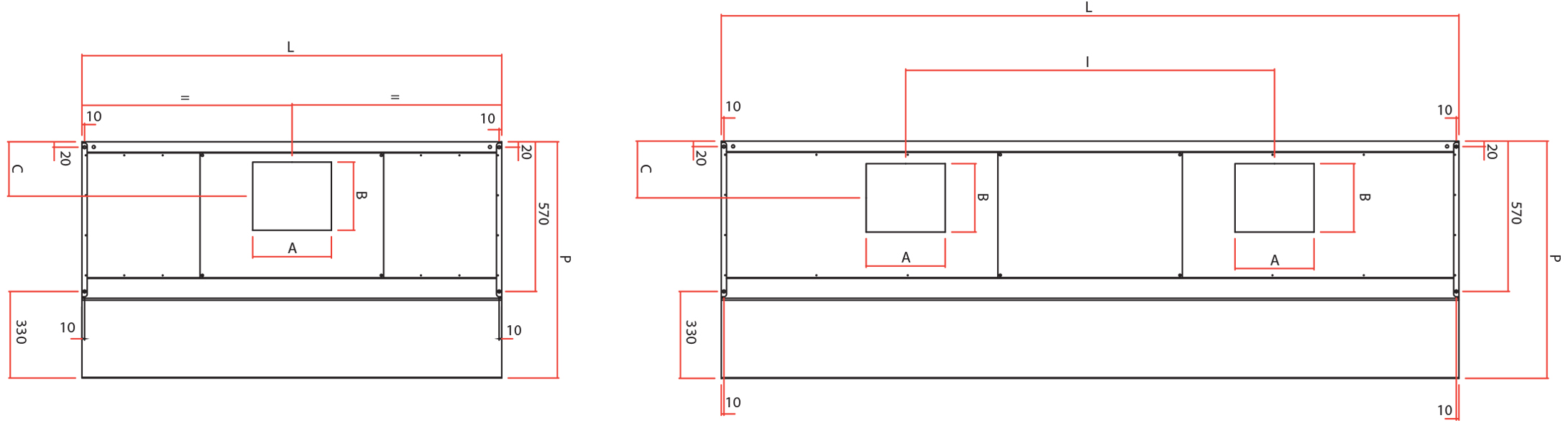
| Модель | Размеры ШхДхВ (мм) |
А х В (мм) |
с (мм) |
количество фильтров | Масса (кг) |
Объем (м 3 /ч) |
НАШИ (мм) |
| ПК 7/10 | 700 x 1000 x 450 | 230x200 | 190 | 2а | 26 | 900 | |
| КП 7/12 | 700 x 1200 x 450 | 230x200 | 190 | 2б | 30 | 1100 | |
| КП 7/14 | 700 x 1400 x 450 | 230x200 | 190 | 2б | 34 | 1250 | |
| КП 7/16 | 700 x 1600 x 450 | 230x200 | 190 | 3а | 37 | 1400 | |
| КП 7/18 | 700 x 1800 x 450 | 230x200 | 190 | 3б | 40 | 1600 | |
| ПК 7/20 | 700 x 2000 x 450 | 300x260 | 170 | 4а | 44 | 1800 | |
| КП 7/22 | 700x2200x450 | 300x260 | 170 | 4а | 46 | 1950 г. | |
| ПК 7/24 | 700 x 2400 x 450 | 300x260 | 170 | 4б | 48 | 2200 | |
| ПК 7/26 | 700 x 2600 x 450 | 300x260 | 170 | 4б | 51 | 2300 | |
| КП 7/28 | 700 x 2800 x 450 | 230 x 200 x 20 | 190 | 5б | 54 | 2500 | 1400 |
| ПК 7/30 | 700 x 3000 x 450 | 230 x 200 x 20 | 190 | 5б | 57 | 2700 | 1500 |
| ПК 7/32 | 700x3200x450 | 230 x 200 x 20 | 190 | 5б | 61 | 2800 | 1600 |
| ПК 7/34 | 700 x 3400 x 450 | 300 x 260 x 20 | 170 | 6б | 64 | 3000 | 1700 |
| ПК 7/36 | 700 x 3600 x 450 | 300 x 260 x 20 | 170 | 6б | 67 | 3200 | 1800 |
| ПК 7/38 | 700x3800x450 | 300 x 260 x 20 | 170 | 6б | 71 | 3350 | 1900 г. |

| Модель | Размеры ШхДхВ (мм) |
А х Б (мм) |
с (мм) |
количество фильтров | Масса (кг) |
Объем (м 3 /ч) |
НАШИ (мм) |
| ПК 9/10 | 900x1000x450 | 230x200 | 190 | 2а | 34 | 1100 | |
| ПК 9/12 | 900x1200x450 | 230x200 | 190 | 2б | 38 | 1400 | |
| СР 9/14 | 900x1400x450 | 230x200 | 190 | 2б | 42 | 1600 | |
| ПК 9/16 | 900x1600x450 | 300x260 | 170 | 3а | 45 | 1800 | |
| ПК 9/18 | 900x1800x450 | 300x260 | 170 | 3б | 48 | 2000 г. | |
| ПК 9/20 | 900x2000x450 | 300x260 | 170 | 4а | 52 | 2250 | |
| ПК 9/22 | 900x2200x450 | 300x260 | 170 | 4а | 54 | 2500 | |
| ПК 9/24 | 900x2400x450 | 300x260 | 170 | 4б | 56 | 2700 | |
| СР 9/26 | 900x2600x450 | 300 x 260 x 20 | 170 | 4б | 59 | 2950 | 1300 |
| СР 9/28 | 900x2800x450 | 300 x 260 x 20 | 170 | 5б | 62 | 3200 | 1400 |
| ПК 9/30 | 900 x 3000 x 450 | 300 x 260 x 20 | 170 | 5б | 65 | 3400 | 1500 |
| ПК 9/32 | 900x3200x450 | 300 x 260 x 20 | 170 | 5б | 69 | 3650 | 1600 |
| ПК 9/34 | 900x3400x450 | 300 x 260 x 20 | 170 | 6б | 72 | 3850 | 1700 |
| ПК 9/36 | 900x3600x450 | 300 x 260 x 20 | 170 | 6б | 75 | 4050 | 1800 |
| ПК 9/38 | 900x3800x450 | 300 x 260 x 20 | 170 | 6б | 79 | 4300 | 1900 г. |

| Модель | Размеры ШхДхВ (мм) | АхВ (мм) | С (мм) | количество фильтров | Вес (кг) | Скорость потока (м3/ч) | я (мм) |
| КП 11/10 | 1100x1000x450 | 230x200 | 230 | 2с | 35 | 1400 | |
| СР 11/12 | 1100x1200x450 | 300x260 | 210 | 2д | 38 | 1700 | |
| СР 11/14 | 1100x1400x450 | 300x260 | 210 | 2д | 41 | 1950 г. | |
| СР 11/16 | 1100x1600x450 | 300x260 | 210 | 3с | 44 | 2200 | |
| СР 11/18 | 1100x1800x450 | 300x260 | 210 | 3д | 47 | 2500 | |
| СР 11/20 | 1100x2000x450 | 300x260 | 210 | 4с | 50 | 2800 | |
| СР 11/22 | 1100x2200x450 | 300x260 | 210 | 4с | 53 | 3100 | |
| СР 11/24 | 1100x2400x450 | 300 x 260 x 20 | 210 | 4д | 56 | 3400 | 1200 |
| СР 11/26 | 1100x2600x450 | 300 x 260 x 20 | 210 | 4д | 59 | 3600 | 1300 |
| СР 11/28 | 1100x2800x450 | 300 x 260 x 20 | 210 | 5д | 62 | 3900 | 1400 |
| КП 11/30 | 1100x3000x450 | 300 x 260 x 20 | 210 | 5д | 65 | 4200 | 1500 |
| СР 11/32 | 1100x3200x450 | 300 x 260 x 20 | 210 | 5д | 68 | 4500 | 1600 |
| СР 11/34 | 1100x3400x450 | 300 x 260 x 20 | 210 | 6д | 73 | 4700 | 1700 |
| СР 11/36 | 1100x3600x450 | 300 x 260 x 20 | 210 | 6д | 78 | 5000 | 1800 |
| СР 11/38 | 1100x3800x450 | 300 x 260 x 20 | 210 | 6д | 83 | 5300 | 1900 г. |

| Модель | Размеры ШхДхВ (мм) | АхВ (мм) | С (мм) | количество фильтров | Вес (кг) | Скорость потока (м3/ч) | я (мм) |
| КП 13/12 | 1300x1200x450 | 250x250 | 250 | 2д | 39 | 2100 | |
| СР 11/14 | 1300x1400x450 | 250x250 | 250 | 2д | 42 | 2500 | |
| СР 11/16 | 1300x1600x450 | 300x300 | 250 | 3с | 45 | 2800 | |
| СР 11/18 | 1300x1800x450 | 300x300 | 250 | 3д | 48 | 3200 | |
| СР 11/20 | 1300x2000x450 | 300x300 | 250 | 4с | 52 | 3500 | |
| СР 11/22 | 1300x2200x450 | 300x300 | 250 | 4с | 56 | 3900 | |
| СР 11/24 | 1300x2400x450 | 300 x 300 x 20 | 250 | 4д | 60 | 4200 | 1200 |
| СР 11/26 | 1300x2600x450 | 400x300x20 | 250 | 4д | 63 | 4600 | 1300 |
| СР 11/28 | 1300x2800x450 | 400x300x20 | 250 | 5д | 66 | 4900 | 1400 |
| КП 11/30 | 1300x3000x450 | 400x300x20 | 250 | 5д | 71 | 5300 | 1500 |
| СР 11/32 | 1300x3200x450 | 400x300z20 | 250 | 5д | 75 | 5600 | 1600 |
| СР 11/34 | 1300x3400x450 | 400x400x20 | 250 | 6д | 83 | 6000 | 1700 |
| СР 11/36 | 1300x3600x450 | 400x400x20 | 250 | 6д | 87 | 6400 | 1800 |
| ПК 11/38 | 1300x3800x450 | 400x400x20 | 250 | 6д | 90 | 6700 | 1900 г. |
