

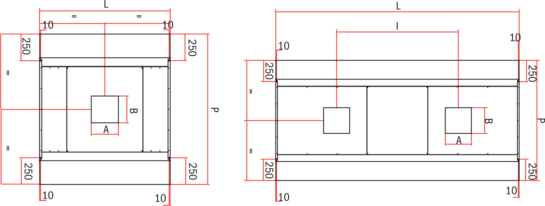
| Модель | Размеры ШхДхВ (мм) |
А х В (мм) |
с (мм) |
количество фильтров | Масса (кг) |
Расход* (м3/ч) | НАШИ (мм) |
| ДИ 14/12 | 1400x1200x450 | 250x250 | "=" | 4б | 60 | 2100 | |
| ИК 14/14 | 1400x1400x450 | 250x250 | "=" | 4б | 64 | 2500 | |
| ДИ 14/16 | 1400x1600x450 | 300x300 | "=" | 6а | 68 | 2800 | |
| ИК 14/18 | 1400x1800x450 | 300x300 | "=" | 6б | 72 | 3200 | |
| ДИ 14/20 | 1400x2000x450 | 300x300 | "=" | 8а | 76 | 3500 | |
| ИК 14/22 | 1400x2200x450 | 400x300 | "=" | 8а | 80 | 3950 | |
| КИ 14/24 | 1400x2400x450 | 400x300 | "=" | 8б | 84 | 4200 | |
| ДИ 14/26 | 1400x2600x450 | 300X300X2 | "=" | 8б | 88 | 4600 | 1300 |
| ДИ 14/28 | 1400x2800x450 | 300X300X2 | "=" | 10б | девяносто два | 4900 | 1400 |
| ДИ 14/30 | 1400x3000x450 | 300X300X2 | "=" | 10б | 96 | 5300 | 1500 |
| ДИ 14/32 | 1400x3200x450 | 300X300X2 | "=" | 10б | 100 | 5600 | 1600 |
| ДИ 14/34 | 1400x3400x450 | 300X300X2 | "=" | 12б | 104 | 6000 | 1700 |
| ДИ 14/36 | 1400x3600x450 | 300X300X2 | "=" | 12б | 108 | 6400 | 1800 |
| ДИ 14/38 | 1400x3800x450 | 300X300X2 | "=" | 12б | 120 | 6700 | 1900 г. |

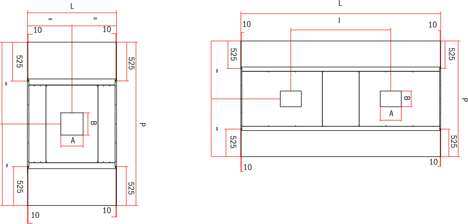
| Модель | Размеры ШхДхВ | А х В | с | количество фильтров | Масса | Расход* (м3/ч) | НАШИ |
| (мм) | (мм) | (мм) | (кг) | (мм) | |||
| ИК 18/12 | 1800x1200x450 | 300x300 | "=" | 4д | 64 | 2750 | |
| ДИ 18/14 | 1800x1400x450 | 300x300 | "=" | 6с | 68 | 3200 | |
| ДИ 18/16 | 1800x1600x450 | 300x300 | "=" | 6с | 72 | 3650 | |
| ДИ 18/18 | 1800x1800x450 | 400x300 | "=" | 6д | 76 | 4050 | |
| ДИ 18/20 | 1800x2000x450 | 400x300 | "=" | 8с | 80 | 4550 | |
| ДИ 18/22 | 1800x2200x450 | 400x300 | "=" | 8с | 84 | 5000 | |
| ДИ 18/24 | 1800x2400x450 | 300X300X2 | "=" | 8д | 88 | 5450 | 1200 |
| ДИ 18/26 | 1800x2600x450 | 300X300X2 | "=" | 8д | девяносто два | 5900 | 1300 |
| ДИ 18/28 | 1800x2800x450 | 300X300X2 | "=" | 10 дней | 96 | 6350 | 1400 |
| ДИ 18/30 | 1800x3000x450 | 300X300X2 | "=" | 10 дней | 100 | 6800 | 1500 |
| ДИ 18/32 | 1800x3200x450 | 300X300X2 | "=" | 10 дней | 106 | 7250 | 1600 |
| ДИ 18/34 | 1800x3400x450 | 300X300X2 | "=" | 12д | 112 | 7700 | 1700 |
| ДИ 18/36 | 1800x3600x450 | 300X300X2 | "=" | 12д | 116 | 8200 | 1800 |
| ДИ 18/38 | 1800x3800x450 | 300X300X2 | "=" | 12д | 123 | 8600 | 1900 г. |

| Модель | Размеры ШхДхВ | А х Б | с | количество фильтров | Масса | Расход* (м3/ч) | НАШИ |
| (мм) | (мм) | (мм) | (кг) | (мм) | |||
| ИЦ 22/12 | 2200x1200x450 | 300x300 | "=" | 4д | 71 | 3300 | |
| ИЦ 22/14 | 2200x1400x450 | 300x300 | "=" | 6с | 75 | 3900 | |
| КИ 22/16 | 2200x1600x450 | 300x300 | "=" | 6с | 79 | 4450 | |
| КИ 22/18 | 2200x1800x450 | 400x300 | "=" | 6д | 83 | 5000 | |
| ДИ 22/20 | 2200x2000x450 | 400x300 | "=" | 8с | 87 | 5550 | |
| ДИ 22/22 | 2200x2200x450 | 400x300 | "=" | 8с | 91 | 6100 | |
| ДИ 22/24 | 2200x2400x450 | 300X300X2 | "=" | 8д | 96 | 6660 | 1200 |
| ДИ 22/26 | 2200x2600x450 | 300X300X2 | "=" | 8д | 101 | 7200 | 1300 |
| ДИ 22/28 | 2200x2800x450 | 300X300X2 | "=" | 10 дней | 106 | 7800 | 1400 |
| ДИ 22/30 | 2200x3000x450 | 300X300X2 | "=" | 10 дней | 110 | 8300 | 1500 |
| ДИ 22/32 | 2200x3200x450 | 300X300X2 | "=" | 10 дней | 115 | 8850 | 1600 |
| ДИ 22/34 | 2200x3400x450 | 300X300X2 | "=" | 12д | 120 | 9450 | 1700 |
| ДИ 22/36 | 2200x3600x450 | 300X300X2 | "=" | 12д | 125 | 10000 | 1800 |
| ДИ 22/38 | 2200x3800x450 | 300X300X2 | "=" | 12д | 130 | 15000 | 1900 г. |
